华体会(中国)-华体会(中国) 行业资讯 政策法规 产业市场 节能技术 能源信息 宏观环境 会议会展 活动图库 资料下载 焦点专题 智囊团 企业库
行业资讯  节能产业网 >> 行业资讯 >> 国内资讯 >> 正文
楼板开洞有危险?加固技术解难题|卡本科技加固硅烷浸渍剂
来源:节能产业网 时间:2020/6/10 11:26:51 用手机浏览

住宅设备专业设计需在混凝土板、梁、剪力墙预留各种洞口、套管,对结构设计提出了要求,给土建施工增加了施工工序。为了解决这个难题,本文给出了楼板开洞的具体要求(位置、尺寸)、构造加固等措施,为工程施工带来详细的技术指引。

1、现浇楼板开洞

现浇楼板开洞加固方式一般是根据开洞大小进行确定。

① 当单(双)向楼板矩形开洞宽度b(b为垂直于板跨度方向的开洞宽度)圆形开洞直径d≤300mm时,切断钢筋数量≤5%时,可不作处理;

② 当300mm

③ 当超出以上情况时,则需要通过设计计算采用合适的型钢边梁或现浇混凝土边梁进行加固方法。

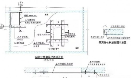
2、粘钢加固

粘钢加固亦称粘贴钢板加固,是将钢板采用高性能的环氧类粘接剂粘结于混凝土构件的表面,使钢板与混凝土形成统一的整体,利用钢板良好的抗拉强度达到增强构件承载能力及刚度的目的。

现浇连续板开洞,当开洞位置位于板的负弯矩区时,采用粘钢作为补偿加固时,应双面加固。对于粘贴钢板加固法,受力较大方向宜粘贴在最外层(其含义就是最后粘贴),受力较小方向钢板钢板粘贴于里层(最先进行粘贴)。

粘钢法加固只适用于承受静力作用的一般受弯及受拉构件,使用环境温度不超过5~60℃,相对湿度不大于70%及无化学腐蚀的使用条件为限,否则应采取有效的防护措施,而且当构件混凝土强度等级低于C15时,不宜采用这种方法加固。

相关要求:

①钢板选用规格宜采用宽为100mm~200mm,厚度为3mm~5mm。

②开洞较小,构造加固才可采用此加固方法。

③补偿钢板面积不得小于截断钢筋的等效截面面积的1.2倍。

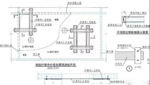
3、粘贴碳布加固

碳纤维布加固原理是采用高性能的碳纤维配套树脂浸渍胶粘结于混凝土构件的表面,利用碳纤维材料良好的抗拉强度,达到增强构件承载能力及强度的目的。

碳纤维布作为加固材料,与传统的加大混凝土截面或粘钢混凝土补强相比,具有节省空间,施工简便,不需要现场固定设施,施工质量易保证,基本不增加结构尺寸及自重,耐腐蚀、耐久性能好等特点。

另外,采用该工法,可大大提高建筑物的使用寿命,降低加固成本,是值得推荐的一种加固方法。

相关要求

①碳布选用规格采用宽为200mm~300mm,质量为200g~300g。

②开洞较小,构造加固才可采用此加固方法。

③补偿碳布最大拉力值不得小于截断钢筋的等效拉力值的1.2倍。

④碳布与钢板接触时应涂胶粘剂一层,不可直接接触。

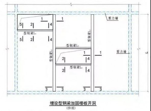
4、增设型钢梁法

当楼板开洞进一步扩大,导致洞口宽度或洞口直径大于1000mm,或切断钢筋数量超过20%时,以及洞口存在较大集中荷载、预制板切断主肋等情况下,仅靠碳纤维布或钢板起到的加固作用将非常有限,应改变传力路径以减少应力集中对楼板受力产生的不利影响。

改变应力传递可采用洞口处新增梁进行支撑传递,方法如下:

①型钢可采用H型钢、槽钢、工字钢和组合型钢,增设钢梁后,需复核改变结构体系的承载力。

②型钢梁与楼板楔紧后灌注胶粘剂或高强水泥浆。

采用此工法,改变应力传递可采用洞口处新增梁进行支撑传递,需要注意原结构纵横向框架梁是否需要加固,以及保障剪力的有效传递。

5、总结

建筑结构受力复杂,且事关生命安全。由于墙体、楼板开洞会对结构承载能力造成一定的削弱,只有重视后期的加固处理,选择适当的加固技术与优质安全的加固材料,才能从长远保障结构安全!




分享到:
相关文章 iTAG:
 最全碳布与粘钢加固异同点分析来了!|卡本科技加固硅
频道推荐
服务中心
微信公众号

CESI
关于本站
版权声明
广告投放
网站帮助
联系我们
网站服务
会员服务
最新项目
资金服务
园区招商
展会合作
节能产业网是以互联网+节能为核心构建的线上线下相结合的一站式节能服务平台。
©2007-2020 CHINA-ESI.COM
鄂ICP备19009381号-2
节能QQ群:39847109
顶部客服微信二维码底部
扫描二维码关注官方公众微信