华体会(中国)-华体会(中国) 行业资讯 政策法规 产业市场 节能技术 能源信息 宏观环境 会议会展 活动图库 资料下载 焦点专题 智囊团 企业库
节能技术  中国节能产业网 >> 节能技术 >> 节能案例 >> 正文
粮食干燥系统节能技术
来源:中国节能产业网 时间:2015-5-27 14:14:51 用手机浏览

一、技术名称:粮食干燥系统节能技术

二、技术所属领域及适用范围:粮食行业

三、与该技术相关的能耗及碳排放现状

在我国,粮食(玉米)烘干技术还处在初级发展阶段,传统的燃煤烘干技术热效率相对较低,约60%左右。而发达国家的粮食干燥系统90%以上采用燃气、燃油技术,燃烧效率相对较高,而且不需换热装置,由于采用了低温烘干和后冷却工艺,粮食温度低,排出的废气温度也低,总体热效率可达90%以上。二者差距较大。目前该技术可实现节能量2万tce/a,CO2减排约5万t/a。

四、技术内容

1.技术原理

保持原有粮食干燥系统的平衡不变,将分层供煤、高效换热器、部分废气和烟气余热的回收利用、调整空气烟气走向、先进保温材料等节能技术进行有机结合并应用于粮食干燥系统中,在保证产量不降低、降水幅度提升和粮食烘干品质的前提下,达到节能减排的目的。

2.关键技术

(1)采用分层供煤装置提高燃烧效率

采用分层给煤装置,使较大颗粒的煤块在煤层的下面贴近炉排,较小颗粒的碎煤和煤粉覆盖在煤层上部,使煤层透气性好,风阻小,改善燃烧条件,减少漏煤量,提高热风炉的热效率。

(2)更换高效换热器提高换热效率

换热器经过长时间运行,会产生列管脱炭、老化和漏烟等现象,从而导致部分列管堵塞,换热效率低,能耗大。此外,换热器列管管壁结焦和堵塞及砌筑式管壳也会对换热效率有很大影响。采用四回程换热器以及装配式换热器管壳,可有效提高换热器的换热效率。

(3)部分废气和烟气余热回收再利用

尾部干燥段末端的废气温度一般在50℃左右,湿度在20%左右。将干燥段末端的废气进行回收利用,用管道送至换热器进风口,可有效提高换热器进风口的空气温度。

冷却段排出的废气温度约在30℃左右,且湿度小,将该热量回收利用,可以提高换热器的进气温度,节约能源,并减轻换热器尾部烟管结硫。这些废气经沉降室后,通过管道送至换热器进风口,进入换热器再加热,继续用来干燥粮食。热风炉烟囱排放的烟气温度一般在110℃-150℃,是干燥系统能量浪费的主要环节之一。通过合理的方式对该部分烟气余热进行利用,至少可回收5%左右的热量,节能效果显著。

(4)调整空气与烟气两相流走向

在粮食干燥系统的供热装置中增加倒流板等技术措施,使空气与烟气均匀分布于换热器的列管中,使其充分发挥效能,从而提高换热效率。

(5)采用先进的保温材料与保温方式

对粮食烘干系统中的部分设备进行全面保温处理,根据不同的部位,采用不同的导热系数小、耐高温且阻燃的保温材料,对热风炉、换热器、热风室和风机等设备进行保温隔热处理,减少热量损失,避免能源浪费。

3.工艺流程

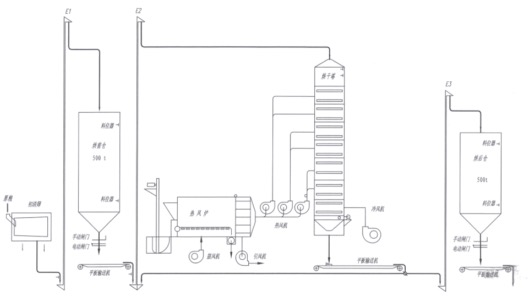
该技术流程见图1。

图1  粮食干燥系统节能减排技术流程图

五、主要技术指标

1.粮食干燥系统可节煤15%左右;

2.粉尘排放可降低50%。

六、技术鉴定、获奖情况及应用现状

该技术于2008年首先在辽宁辖区的抚顺、台安、丹东、阜新、开原、朝阳、建平、凌源和兴城等9个中央储备粮直属库进行节能减排技术改造示范,取得了良好的效果;2009年,在辽宁辖区8家直属库的玉米烘干机系统中推广应用;2010年,推广应用面到中储粮黑龙江分公司和内蒙古分公司,使技术的应用库点达到30多家。自2009年以来,在中储粮总公司新建的粮食干燥系统中,全部采用了该项技术。到目前为止,已累计应用于38套玉米烘干机系统中,节能减排效果良好。

七、典型应用案例

典型用户:中储粮管理总公司阜新直属库

典型案例1

技术提供单位:中国储备粮管理总公司

建设规模:300t/d粮食干燥系统。主要技改内容:尾部干燥段废气回收利用,冷却段废气回收利用,烟气余热回收利用,设备保温处理。主要设备包括干燥废气余热回收装置、全部冷却废气回收装置、烟气余热回收利用装置、热风炉、换热器和热风机增设保温装置。节能技改投资额60万元,建设期2个月。每年可节能78tce,年节能经济效益为15万元,投资回收期4年。

典型案例2

技术提供单位:中国储备粮管理总公司

建设规模:300t/d粮食干燥系统。主要技改内容:更换四回程换热器,烟气余热回收利用,设备保温处理,增设分层煤斗。主要设备包括换热器、余热回收装置和分层煤斗。节能技改投资额40万元,建设期2个月。每年可节能75tce,年节能经济效益11万元,投资回收期约4年。

八、推广前景及节能减排潜力

在我国整个东北地区,现有粮食干燥系统3000余套,每年烘干粮食约3700万t,消耗煤炭约148万t。预计未来5年,该技术可在北方粮食干燥系统中推广50%,可形成的年节能能力约10万tce,年减排能力约26万tCO2。


分享到:
相关文章 iTAG:
没有相关技术
频道推荐
服务中心
微信公众号

CESI
关于本站
版权声明
广告投放
网站帮助
联系我们
网站服务
会员服务
最新项目
资金服务
园区招商
展会合作
中国节能产业网是以互联网+节能为核心构建的线上线下相结合的一站式节能服务平台。
©2007-2016 CHINA-ESI.COM
鄂ICP备16002099号
节能QQ群:39847109
顶部客服微信二维码底部
扫描二维码关注官方公众微信